유조선 안전 설계 및 위험 지역 분류
현재 위치: 홈페이지 » 소식 » 유조선 » 유조선 안전 설계 및 위험 지역 분류

유조선 안전 설계 및 위험 지역 분류

번호 검색 :0     저자 :사이트 편집기     게시: 2024-01-05      원산지 :강화 된

귀하의 메시지

facebook sharing button
twitter sharing button
line sharing button
wechat sharing button
linkedin sharing button
pinterest sharing button
whatsapp sharing button
sharethis sharing button
유조선 안전 설계 및 위험 지역 분류


유조선 벌크액체 운송에 특화된 선박으로, 화물은 주로 인화점이 60°C 이하인 벌크 원유 및 석유제품을 운송하는 것을 말합니다.IEC-60092-502에 따르면 인화점이 60°C 미만인 석유 제품을 운송하는 선박은 위험이 더 높으며 사양에는 위험 지역 구분에 대한 더 자세한 요구 사항이 있으며 위험 지역의 모든 전기 장비는 관련 폭발을 충족해야 합니다. - 증거 요구 사항.위험 지역 분류 유조선 안전 설계에서 매우 중요한 부분입니다.


유조선-9


유조선의 위험 지역 분류 원칙

위험 지역 분류 유조선 인화점이 60°C 이하인 인화성 액체를 운반하는 액체 화물선에 대한 IEC-60092-502를 주로 따릅니다.위험 구역은 구역 0, 구역 1, 구역 2로 구분되며 구역 0이 가장 위험하고 구역 2가 가장 위험합니다.화물창, 오일 및 물 탱크, 화물창과 동일한 구역에 있는 모든 압력 진공 배관 또는 기타 환기 시스템, 화물 또는 배관이 포함된 내부 공간, 가연성 가스 또는 증기를 취급하는 장비는 모두 구역 0으로 분류됩니다.


구역 1의 정의는 상대적으로 복잡하며 다음으로 구성됩니다. a) 액체 화물 탱크에 바로 인접한 밀폐된 건물b) 화물 호스가 보관되어 있는 구획과 화물 라인이 포함된 밀폐 및 반밀폐 건물c) 창구, 가스 또는 증기 배출구, 화물 분배 밸브, 화물 파이프 플랜지, 액체 화물 탱크의 압력 및 진공 밸브에 인접한 구역.2는 단순히 Zone 1의 확장(예: Zone 1 구내, 입구, 출구, 환기 및 환기구)으로 이해될 수 있습니다.입구와 출구, 환기 및 환풍구 등 개방형 데크 영역의 경계에서 Zone 1의 외부 확장입니다.또한 개방형 데크 구조의 특성에 따라 갑판 위 2.4m 높이까지 골재가 '꺼진' 화물창 구역을 Zone 1로 간주하고, 데크가 '꺼진' 부분을 Zone 1로 간주한다. '데크 위 최대 2.4m 높이의 뼈 재료는 구역 2로 간주됩니다.


유조선 위험 지역 분류 차트


다양한 유형의 개구부 배치 및 영향

오프닝 유조선 주로 다음 세 가지 종류로 나뉩니다. 첫째, 맨홀 뚜껑, 창구 덮개, 문, 창문 및 세척 창구 덮개와 같은 인원 접근 및 일상 사용을 위한 개구부입니다.둘째, 자연 환기, 기계적 환기, 양압 환기와 같은 객실 환기;셋째, 공기 튜브, 수심 측정 튜브, 고압 릴리프 밸브, 통기성 마스트 및 진공 방출기와 같은 통기성 시스템입니다.첫 번째 유형의 개방은 승무원의 사용 요구 사항을 충족하고 위험 지역의 영향에 충분한 주의를 기울여야 하며, 여기에서는 해치 환기 및 특수 통기성 시스템의 배열 및 영향에 중점을 두고 논의합니다.


합리적이고 효과적인 환기는 일반적으로 흡입 공기 및 추출 공기 형태의 가연성 가스의 축적을 방지할 수 있습니다.위험한 장소의 환기를 위해서는 첫째, 안전한 장소의 환기로부터 멀리 떨어져 있어야 하며,둘째, 위험한 장소의 공기 흡입구는 가능한 한 안전한 지역에 있어야 하며, 정말로 부득이한 경우에는 적시에 분류 협회와 협의해야 합니다.마지막으로 더 위험한 구역에는 공기 배출구를 배치할 수 없습니다. 그렇지 않으면 위험 수준을 높여야 합니다.펌프실의 환기 배치를 취함 유조선 예를 들어, 펌프실은 인력 운영 요인으로 인해 1개 구역의 화물유 탱크에 인접해 있으며 이 구역은 불활성 구역이 아니므로 펌프실의 환기 환경이 매우 중요합니다.펌프실은 환기를 위해 펌핑(시간당 30회)을 하고 있으며, 펌프실의 공기 흡입구와 배출구는 다른 위험원으로부터 최대한 멀리 떨어져 있어야 하며, 둘이 서로 영향을 미칠 수 없습니다.공기 흡입구는 안전한 지역에 있어야 하지만, 사양에 따르면 펌프실의 공기 흡입구 주변 3미터도 위험 지역이므로 설계 시 이를 고려해야 합니다.


화물 펌프실의 환기


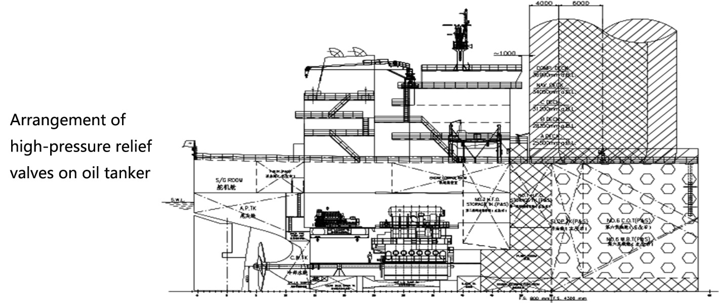
화물창의 고압 배기 밸브, 배기 마스트 및 진공 해제 장치는 다음과 같은 특수 배기 장치입니다. 유조선.이러한 장치는 화물창 내 오일 및 가스의 압력이 너무 높을 때 오일 및 가스를 외부 공기로 방출하므로 IEC에서는 이러한 장치의 위험 구역에 대해서도 가장 엄격한 제한을 적용했습니다.화물 취급, 밸러스트 또는 액체 화물 탱크로부터의 가스 배출 중에 생성되는 다량의 가스 또는 증기 혼합물을 제공하는 액체 화물 브리더 파이프 주변 구역, 브리더로부터 위쪽으로 반경 6미터의 높이가 무제한인 수직 실린더 브리더 파이프에서 아래쪽으로 반경 6m 이내의 반구 내 개방형 데크 구역 또는 개방형 데크의 반밀폐형 구역은 Zone 1에 속하고, Zone 1에서 바깥쪽 4m는 Zone 2에 속합니다. , 그림과 같이 간단하게 말하면 영향권은 반경 10m, 높이 무제한의 원통형입니다.화물창 통풍장치의 위치는 다음 요소를 고려해야 합니다. 첫째, 상부구조로부터 멀리 떨어져 있어야 합니다.둘째, 화물창 구역의 갑판 창고와 갑판 탐조등 마스트의 환기를 피하십시오.셋째, Bowman의 창고 문에서 최소 10m의 거리를 유지하십시오.


유조선의 고압 릴리프 밸브 배치


Conclude

디자인을 위해 유조선, 방폭은 안전 설계의 중요한 부분이며, 설계가 적절하지 않으면 향후 사용에 큰 위험을 초래할 수 있습니다.설계자는 유조선의 위험 구역 분류에 주의를 기울여야 하며 설계 과정에서 다양한 당사자의 조정에 주의를 기울여 모든 종류의 개구부, 환기, 공기 및 선실 레이아웃을 확보해야 합니다. 유조선 규정과 규범을 충족할 수 있습니다. 친하이 품질 전면 관리 및 프로세스 관리에 중점을 두고 내부 관리 수준을 지속적으로 향상시킵니다. 우리는 중국 분류 협회에서 발행한 CCS 품질 관리 인증서를 획득하고 정부 부서의 인증 및 환경 영향 평가 및 승인을 통과했습니다. 최근 몇 년간 회사는 규정을 준수합니다. 국가 전략 배치와 선박 산업의 정보화 및 지능형 개발 요구 사항을 충족합니다. '두 가지의 통합'을 촉진하고 생산 자동화 및 지능형 제조를 계속 구현합니다. 우리는 여러 자동 조립 및 반자동을 보유하고 있습니다. 생산 라인.

제품 카테고리

무작위 제품

제품

회사 소개

지원하다

문의하기

비즈니스 전화 : +86-0523-88329456

skype : ruis@tzcp-flooring.com

이메일: yu@qinhai-shipping.com

이동하는. +86-13775678891

Tai Zhou Qin Hai Shipping Science and Technology Co., Ltd © 2022 - ALL RIGHTS RESERVED